3 Burgess St WILTON NSW 2571
4
2
2
Executive living
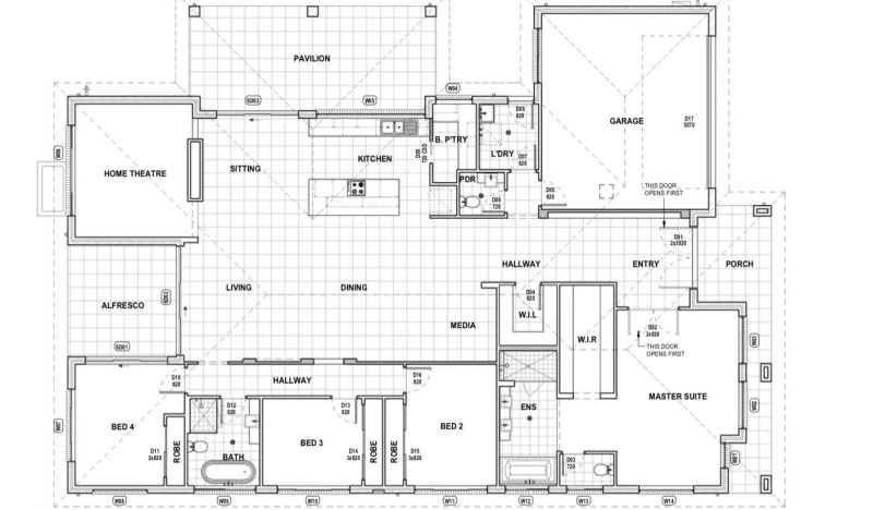
If you are searching for an executive property, then this just could be the one. Located in Bingara’s Greenbridge East, close to a large family Park, walking tracks and a short distance to the local school and shops. Large family Masteron built residence, only a few months old with open plan living and large proportions. Grand entrance with high ceilings throughout. Main bedroom wing with walk in robe, stunning ensuite including free standing bath and separate toilet. Open plan lounge and dining ... [More]
If you are searching for an executive property, then this just could be the one. Located in Bingara’s Greenbridge East, close to a large family Park, walking tracks and a short distance to the local school and shops. Large family Masteron built residence, only a few months old with open plan living and large proportions. Grand entrance with high ceilings throughout. Main bedroom wing with walk in robe, stunning ensuite including free standing bath and separate toilet. Open plan lounge and dining with central kitchen. The kitchen offers quality stainless steel appliances and butlers pantry. Media room to the rear with brick feature wall. Three other bedrooms towards the rear wing of the home, all large in scale with built in robes and 4th bedroom with it’s own alfresco entry. Main bathroom and separate central powder room for guest convenience. Laundry with storage, walk in linen cupboard and extra width double garage. The home offers a super sized alfresco for outdoor entertaining, side access, ducted air and a modern palette. Access to community gym and pool facilities in the lease. [Less]
Agent Details
Email Agent
Property Information
Type
Residential Lease
Price
LEASED
Property Type
House