17 Lamond Common CAMDEN PARK NSW 2570
5
3
2
Get ready for Summer!
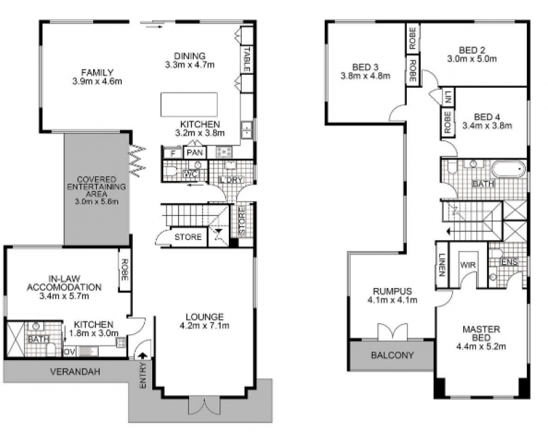
Situated in the popular Camden Park Estate, in a beautiful quiet pocket and across from a parkland reserve, this family home is ready for you to enjoy. Offering huge proportions throughout, including four super sized upstairs bedrooms with built in robes, plus main with ensuite and walk in robe. The home has a properly converted garage made into a 5th bedroom downstairs which includes its own kitchen, bathroom and robe, perfect for a teenage retreat or in law accommodation. The living spaces include ... [More]
Situated in the popular Camden Park Estate, in a beautiful quiet pocket and across from a parkland reserve, this family home is ready for you to enjoy. Offering huge proportions throughout, including four super sized upstairs bedrooms with built in robes, plus main with ensuite and walk in robe. The home has a properly converted garage made into a 5th bedroom downstairs which includes its own kitchen, bathroom and robe, perfect for a teenage retreat or in law accommodation. The living spaces include a large formal lounge room at the front of the home, open plan dining and family at the rear off the well-appointed central kitchen and a separate upstairs lounge room. All rooms are perfectly positioned around the entertaining quarters of the home making the floor plan definitely one to impress. Stepping outside, you’ll appreciate both the covered and uncovered entertaining spaces, plus a heated mineral pool with timber-decking. Neat, easy to maintain backyard with garden storage options. An upstairs balcony off the front of the home to watch the sunset over towards the Blue Mountains, multiple storage options both up and downstairs,10kW Solar panel system and a recently installed ducted air conditioning system for your comfort. Close to Camden Valley inn and a short drive to Camden CBD, local schools and daycare facilities. [Less]
Agent Details
Email Agent
Property Information
Type
Residential Lease
Price
LEASED
Property Type
House
Property Features
Air Conditioning • Balcony • Built-ins • Dishwasher • Ducted Heating • Entertainment Area • Fully Fenced • Pet Friendly • Solar Panels • Swimming/Lap Pool •